Un lieu de vie paisible

Situé au cœur d’un environnement résidentiel calme et en bout de quartier, le projet Rossi a été conçu pour répondre aussi bien aux attentes des familles, des couples, des personnes seules ou des investisseurs.

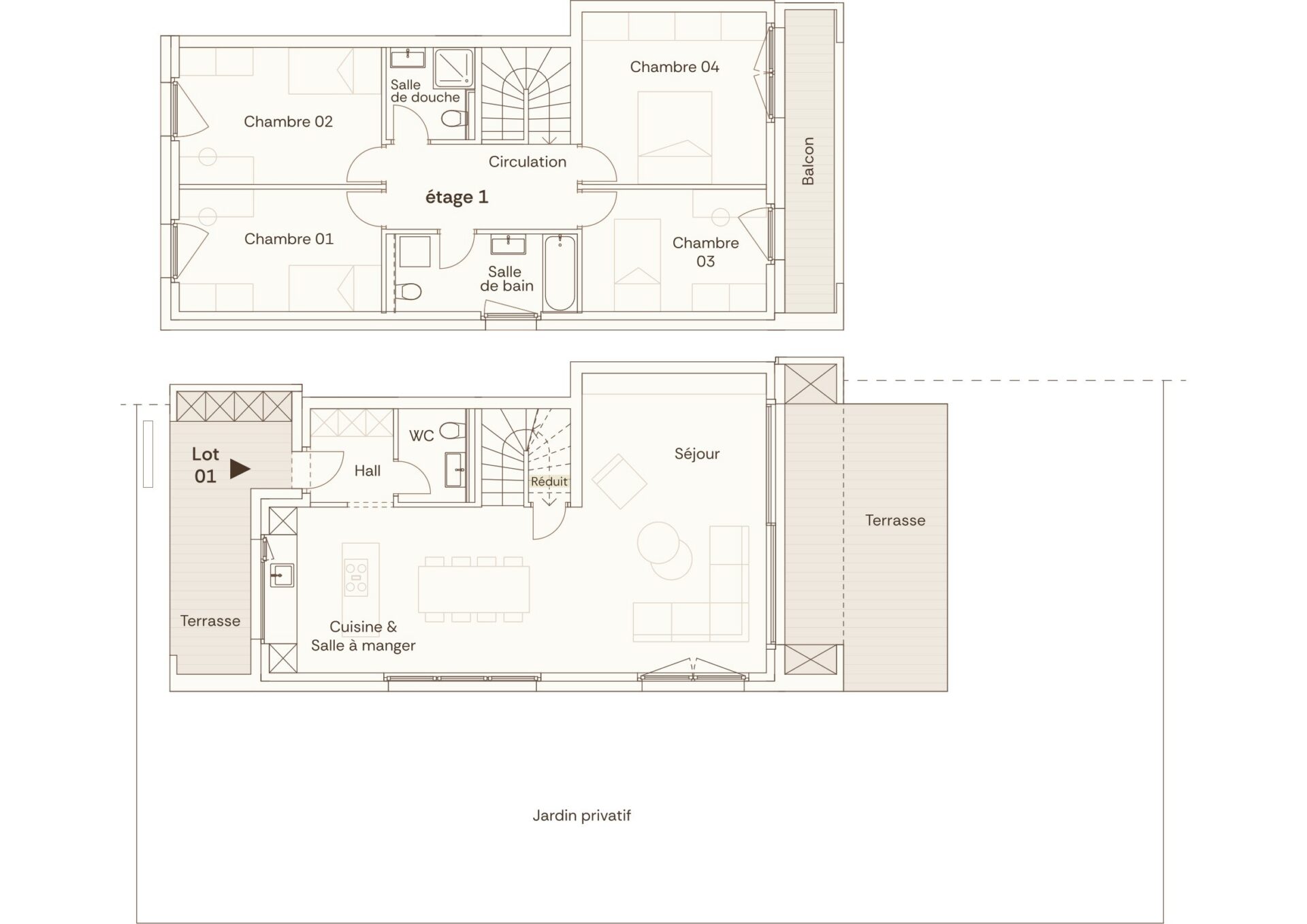
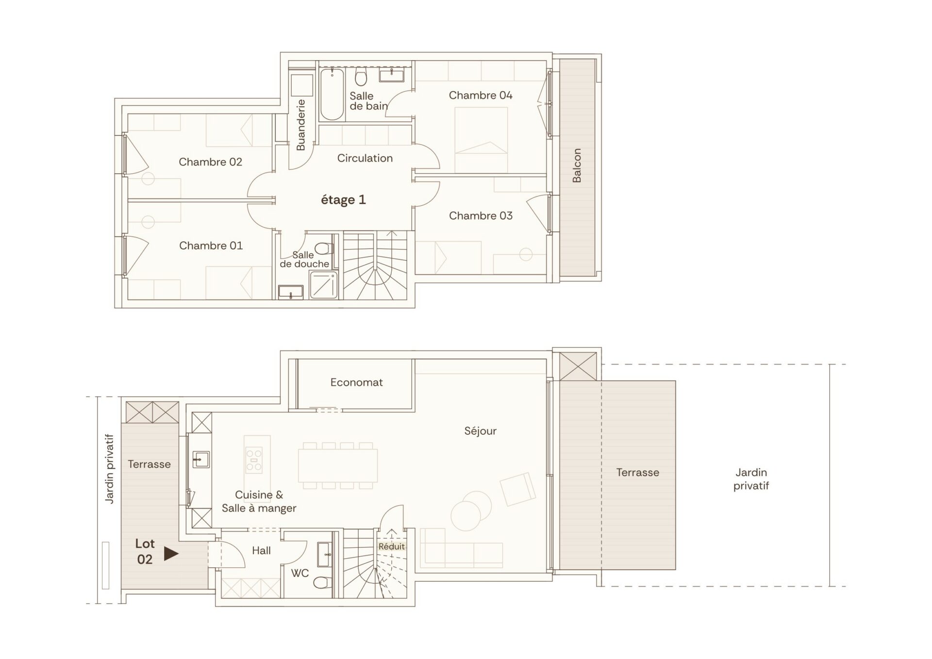
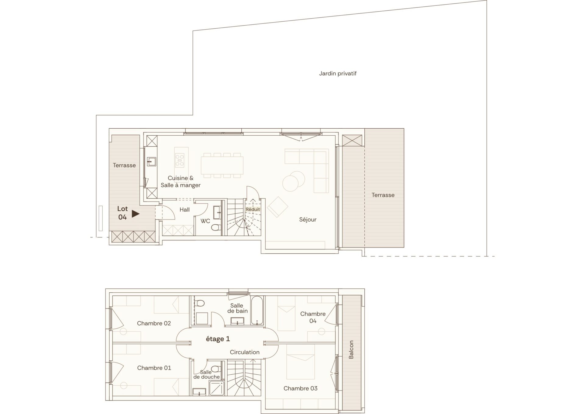
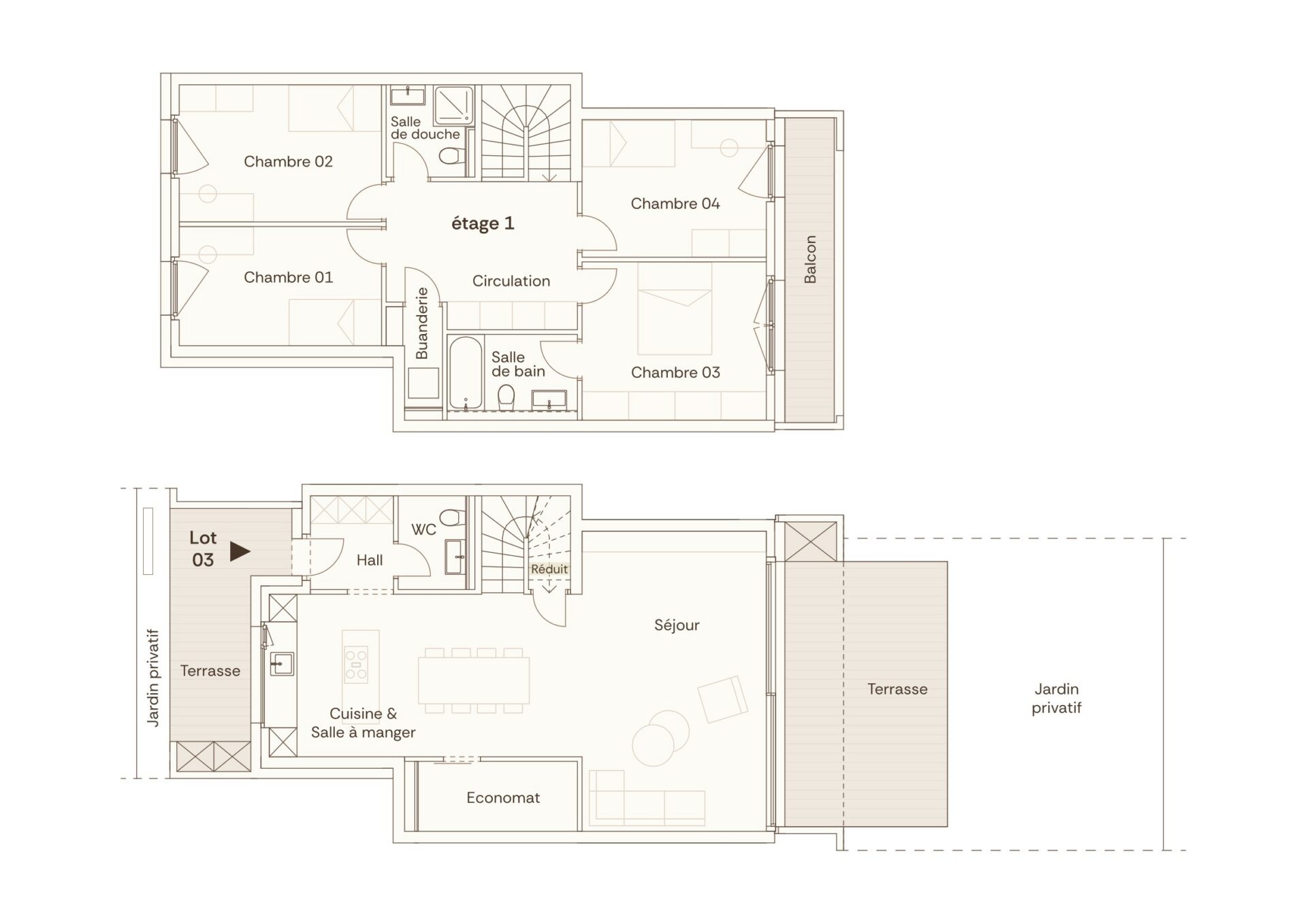
La résidence se compose de 8 appartements, dont 4 logements de 2.5 pièces et 4 appartements de 5.5 pièces en duplex, et se distingue par son architecture contemporaine, la qualité de ses matériaux et sa belle luminosité naturelle.

Les appartements de 5.5 pièces offrent un généreux espace de vie de plus de 50 m² au rez-de-chaussée, avec terrasse et jardins privatifs. L’étage accueille quatre chambres à coucher ainsi que deux salles d’eau, assurant confort et fonctionnalité pour tous.

Les logements de 2.5 pièces attiques, disposent d’une cuisine agencée ouverte sur un spacieux séjour / coin à manger d’environ 30 m², d’une chambre ainsi que d’une salle de bains avec WC. Chaque appartement bénéficie d’une cave privative. Des places de parc couvertes et extérieures sont disponibles en sus.

Le projet Rossi allie confort moderne et raffinement architectural, offrant à ses résidents un cadre de vie serein et élégant, à proximité immédiate des commodités et des principaux axes routiers ou ferroviaires.

Prix à partir de

CHF 450’000.-

Date de livraison

Hiver 2027

Nombre de pièces

2.5 et 5.5 pièces

La situation

Située au cœur du district de la Sarine, la commune de Cottens offre un cadre de vie privilégié, alliant la tranquillité de la campagne à la proximité des principales villes.

Grâce à sa situation stratégique, Cottens permet de rejoindre rapidement les villes de Fribourg, Romont, Bulle et Payerne, ainsi que de grands centres tels que Lausanne et Berne, grâce à l’accès autoroutierA12 situé à moins de dix minutes, ainsi qu’à la gare CFF.

Idéale pour les amoureux de la nature, la commune de Cottens est entourée de magnifiques paysages, avec vue sur les Préalpes, et bordée de forêts et de champs. Elle dispose de sentiers pédestres, botaniques et cyclables propices aux loisirs en plein air. Un parcours Vita se trouve sur la commune de Neyruz, à environ dix minutes à pied.

La commune bénéficie également de toutes les infrastructures destinées aux familles, telles que des écoles, des structures d’accueil, une ludothèque, des espaces de jeux et des installations sportives. Le village accueille également des sociétés locales (musique, théâtre, jeunesse, etc.).

Le taux d’imposition à Cottens s’élève à 0.80 ct par franc payé à l’Etat.

Dans le village, on trouve toutes les commodités essentielles à une vie pratique, notamment un magasin Denner, un tea-room, une boucherie, une banque, un centre de santé, une piscine, un fitness, un EMS, des appartements protégés ainsi qu’une gare CFF.

Points d’intérêts

Distances

Accueil extrascolaire - 15' 8' 3' -
Crèche - 10' 3' 2' -
Ecole primaire - 15' 7' 2' -
CO Avry-sur-Matran - - - 10' 15'
Denner, boucherie, tea-room - 10' 5' 2' -
Banque (BCF) - 10' 5' 2' -
Centres commerciaux - - - 10' -
Centre santé (physio, dentiste, médecin) - - 9' 3' -
Piscine et fitness - 15' 9' 3' -
Gare CFF - 15' 7' 4' -
Accès autoroutier A12 - - - 9' -

La galerie

Les appartements

 

Rossi

Lot Pièces Etage Surface PPE Prix Statut
15.5Rez + 1er166 m2CHF 960'000disponible
25.5Rez + 1er164 m2CHF 960'000disponible
35.5Rez + 1er164 m2CHF 960'000disponible
45.5Rez + 1er167 m2CHF 960'000disponible
52.5Attique64 m2réservé
62.5Attique66 m2CHF 460'000disponible
72.5Attique66 m2CHF 460'000disponible
82.5Attique66 m2réservé
Je suis interessé(e) par
*
*
*
*

*En sus du prix de vente
Pl. de parc couvertes : CHF 20’000.-
Pl. de parc extérieures : CHF 15’000

Contact

JE SUIS INTÉRESSÉ(E) !

Titre
Quel est votre budget ?
Combien de chambres souhaitez-vous ?
Quel type de bien recherchez-vous ?
Inscription Newsletter
Mentions légales